全国 田舎暮らし物件 > 福島県 > 羽鳥湖高原で日当たりの良く閑静な環境、随所にこだわりを感じるガレージ付3階建
福島県 天栄村 [住宅]
物件No.18391T
羽鳥湖高原で日当たりの良く閑静な環境、随所にこだわりを感じるガレージ付3階建680万円
この物件について問い合わせるしつこい営業は一切致しませんので、安心してお問い合わせください。
現地へのご案内や、ネットでは公開していない詳細情報をお知らせします。
現地へのご案内や、ネットでは公開していない詳細情報をお知らせします。
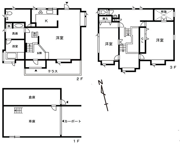
福島県南部にある羽鳥湖高原は別名「東北の軽井沢」と呼ばれるほど人気のリゾート地で、標高が約900mと高いため夏は避暑地として、冬はスキーで楽しむことが出来る別荘地だ。最寄り駅は東北新幹線の発着する新白河駅で、東京からも仙台からもアクセスしやすい環境で、週末気軽に訪れやすい立地とだけあって、人気が高まってきている。今回の物件は平和郷観光開発の分譲地で、別荘街では珍しく1階に普通車2台が入るガレージで、雪深い当地では1年を通じて住みやすい設備を完備。道路から2階玄関までの階段及びウッドデッキの修繕費用は、引渡し後に買主負担となるため予算に入れて頂きたい。
| 物件No. | 18391T |
|---|---|
| 所在地 | 福島県岩瀬郡天栄村田良尾芝草 |
| 種別 | 住宅 |
| 地目 | 山林 |
| 地勢 | 平坦地 |
| 土地面積 | 728㎡ (220.22坪) |
| 建物面積 | 168.29㎡ (50.9坪) |
| 建物構造 | 木造亜鉛メッキ鋼板葺3階建 |
| 築年 | 平成7年 |
| 床面積1階 | 34.15㎡ (10.33坪) |
| 床面積2階 | 68.31㎡ (20.66坪) |
| 床面積3階・その他 | 65.83㎡ (19.91坪) |
| 接道状況 | 東側が幅約6mの舗装私道に接する |
| 都市計画 | 区域外 |
| 建ぺい率 | 20% |
| 容積率 | 40% |
| 法令 | 大川羽鳥県立自然公園(普通地域)、森林法、福島県景観条例 |
| 標高 | 870m |
| 設備 | 電気、私営水道、合併浄化槽、IH+灯油 |
| 交通 | 会津線湯野上温泉駅より約23.9km、東北本線新白河駅より約24.2km、東北道白河ICより約25km |
| 生活 | スーパーリオンドールへ約26.5km、セブンイレブンへ約23.2km、太陽の国病院へ約25.6km、コメリへ約25.3km、村役場へ約24.6km |
| 備考2 | 共益費:年間95,515円(税込) |
情報更新日:2026/02/09
この物件について問い合わせる
しつこい営業は一切致しませんので、安心してお問い合わせください。
現地へのご案内手配や、ネットでは公開していない詳細情報・ご質問事項をお答えいたします。
(※ご見学前に特別にお送りする資料等はご用意しておりませんのでご了承ください)
現地へのご案内手配や、ネットでは公開していない詳細情報・ご質問事項をお答えいたします。
(※ご見学前に特別にお送りする資料等はご用意しておりませんのでご了承ください)
※掲載されている図面・データが現況と異なる場合は、現況を優先します。






















































