全国 田舎暮らし物件 > 山梨県 > 閑静な森の中にたたずむ瀟洒な白亜のリゾートマンション
山梨県 高根町 [住宅]
物件No.18266Y
閑静な森の中にたたずむ瀟洒な白亜のリゾートマンション 780万円
この物件について問い合わせるしつこい営業は一切致しませんので、安心してお問い合わせください。
現地へのご案内や、ネットでは公開していない詳細情報をお知らせします。
現地へのご案内や、ネットでは公開していない詳細情報をお知らせします。
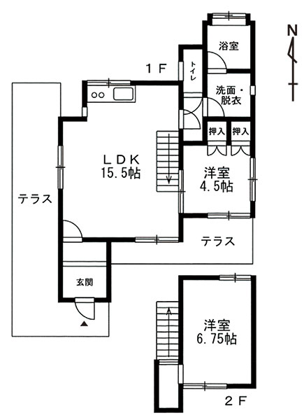
北杜市高根町清里地区。国道141号線から西に約850m入った場所にある白亜のマンション。平成2年9月築、5階建て、総戸数は77戸。物件は最上階、5階の北東の角部屋にある2LDK。角部屋のため、部屋は明るく、気持ちのいい風が通る。間取りは、玄関を入り6帖の洋室(A)、突き当りには10.8帖のリビングダイニングと独立したコンパクトなキッチン、そして6.3帖の洋室(B)。窓の外は雑木林で、森に包まれているように感じる。部屋は、進入道路から一番離れた場所に位置するので静か。居住者は、サウナ付き大浴場、プレイルーム、多目的ホール、コインランドリーが利用できる。管理人は、日勤勤務している。別荘利用の他、永住にもおすすめ。
| 物件No. | 18266Y |
|---|---|
| 所在地 | 山梨県北杜市高根町清里念場原 |
| 種別 | 住宅 |
| 地目 | 宅地 |
| 地勢 | ほぼ平坦地 |
| 土地面積 | 2990.15㎡ (904.52坪) |
| 建物面積 | 59.16㎡ (17.89坪) |
| 建物構造 | RC造陸屋根5階建 |
| 築年 | 平成2年 |
| 床面積1階 | 52.61㎡ (15.91坪) |
| 床面積3階・その他 | 6.55㎡ (1.98坪) |
| 接道状況 | 西側が幅約6mの舗装公道に接する。(開発道路) |
| 都市計画 | 区域外 |
| 建ぺい率 | 30% |
| 容積率 | 100% |
| 法令 | 北杜市まちづくり条例、景観条令 |
| 設備 | 電気、私設水道、集中浄化槽、PG |
| 交通 | 小海線清里駅より約3.8km、中央道長坂ICより約12.5km 車で9分 |
| 生活 | 高根総合支所へ約12.4 km、スーパーへ約10.7km、コンビニへ約3.1 km、小学校へ約10.7 km、診療所、郵便局へ約3.6km |
| 備考 | バルコニー面積6.55㎡(1.98坪),エレベーター、コインランドリー(有料)、プレイルーム、大浴場(土日のみ)、多目的ホール、ゴミステーション(24時間)。5階501号室 |
| 備考2 | 管理費25,160円(修繕積立金含む)、駐車場(無料)49台(うち敷地外25台)。 |
情報更新日:2025/11/17
この物件について問い合わせる
しつこい営業は一切致しませんので、安心してお問い合わせください。
現地へのご案内手配や、ネットでは公開していない詳細情報・ご質問事項をお答えいたします。
(※ご見学前に特別にお送りする資料等はご用意しておりませんのでご了承ください)
現地へのご案内手配や、ネットでは公開していない詳細情報・ご質問事項をお答えいたします。
(※ご見学前に特別にお送りする資料等はご用意しておりませんのでご了承ください)
※掲載されている図面・データが現況と異なる場合は、現況を優先します。




















