




田舎暮らし
物件を探す

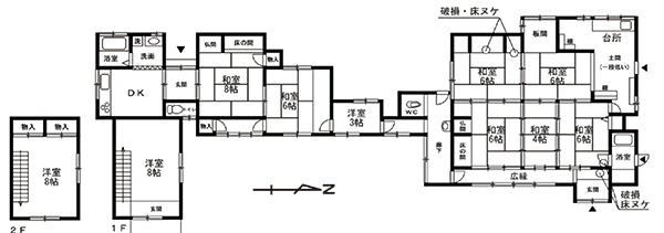
一級河川三篠川は広島市中心部へ流れる太田川の支流で、高低差も少ないため穏やかな川として親しまれている。そんな三篠川の土手近くにあるのが今回の物件で、南北に並列に4棟建物が並んでいるが、うち2棟は通り抜けが出来る構造のため、間取りは10DKととても広い。南側の平家建がメインの居住スペースで、水回り等もリフォームされているため快適に生活できる。北側の平家建は内外装ともに経年劣化が進行しているため、解体し更地後は駐車場等に転用した方が良いだろう。その隣の古民家は1階2階ともに物置小屋として使っているため、収納スペースにはかなりゆとりがあって使いやすそうだ。
【オンライン見学はこちらから】
→ここをクリック
物件No.
17396T
所在地
広島県広島市安佐北区白木町秋山字落尻
種別
民家
地目
宅地、田、田
地勢
平坦地
土地面積
3150.25㎡(952.95坪)
建物構造
木造板葺平家建
床面積1階
52.89㎡(15.99坪)
延面積
52.89㎡(15.99坪)
築年
その他未登記附属建物として、木造平家建の住宅、木造平家建の古民家、木造2階建の倉庫の計3棟あり。年
改築年
不詳
接道状況
西側が幅約2.7mの舗装公道に接する
都市計画
区域外
設備
電気、公営水道、公共下水(農業集落排水)、PG
交通
芸備線志和口駅より約1.5km、上三田駅より約2.6km、山陽新幹線広島駅より約29km、山陽道志和ICより約15.1km
生活
スーパーユアーズへ約1.5km、セブンイレブンへ約450m、病院へ約1.2km、ウォンツへ約1.4km、郵便局へ約1.2km、区役所白木出張所へ約1.4km
法令
農地法、農振法(青地)、広島市景観条例
標高
芸備線志和口駅より約1.5km、上三田駅より約2.6km、山陽新幹線広島駅より約29km、山陽道志和ICより約15.1kmm
建物備考
その他未登記附属建物として、木造平家建の住宅、木造平家建の古民家、木造2階建の倉庫の計3棟あり。
備考
河川浸水想定区域(5.0-10.0m未満)
