




田舎暮らし
物件を探す

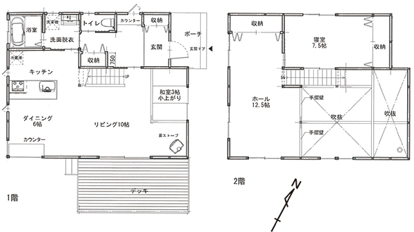
山梨県が開発した借地権の分譲地「清里の森」にある住宅。物件は別荘地区の中でも標高の高い北端部に位置し、高原の爽やかな気候が魅力的だ。別荘内のメイン道路に面してアクセスもしやすい。340坪の広々とした敷地に2019年築の住宅が建っている。大屋根の家で、外壁は温かみのある塗り壁、窓の周りに木材をあしらった自然に馴染むデザイン。室内も大変きれいな状態。1階のリビングは吹き抜けの大空間。白の壁紙と床や梁、柱の濃い茶色の木材の対比が美しい。断熱性が高く冬も暖かく過ごせる。庭には落葉樹が間をあけて育ち、四季の移ろいを楽しめる。落葉する冬は庭に野鳥を招いても良いだろう。
物件No.
17451B
所在地
山梨県北杜市高根町清里
種別
住宅(借地権)
地目
山林
地勢
平坦地
土地面積
1126㎡(340.61坪)
建物構造
木造鋼板葺2階建
床面積1階
63.76㎡(19.28坪)
床面積2階
40.99㎡(12.39坪)
延面積
104.75㎡(31.67坪)
築年
平成 電気、公営水道、水洗(浄化槽)、PG年
改築年
小海線清里駅より約2.8km、中央道長坂ICより約14km 車で22分
接道状況
東側が幅約10mの舗装公道に接する。
都市計画
区域外
建ぺい率
20%
容積率
40%
設備
電気、公営水道、水洗(浄化槽)、PG
交通
小海線清里駅より約2.8km、中央道長坂ICより約14km 車で22分
生活
高根総合支所、スーパー、小学校へ約13km、コンビニ、郵便局、診療所へ約3km
法令
清里の森自主規制
標高
19.28m
備考
・土地は借地権・借地料:164,667円/年 共益費:47,000/年・借地期間の更新可・更新料不要・建ぺい率・容積率は清里の森自主規制
