




田舎暮らし
物件を探す

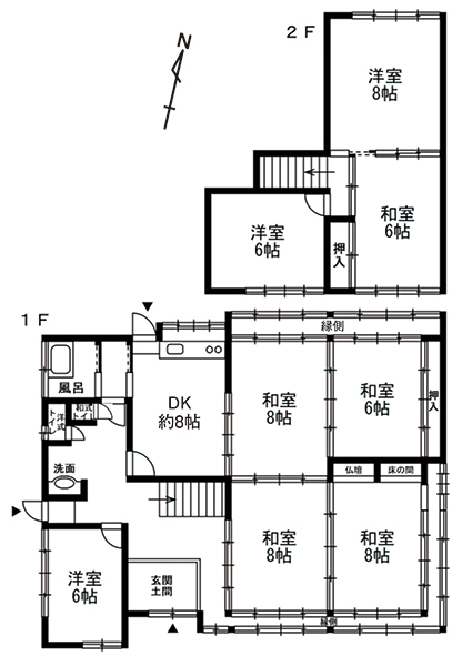
米子市は、鳥取県の西部、山陰のほぼ中央に位置し、南東に中国地方最高峰の大山(だいせん)、北に日本海、西に島根県松江市と米子市にまたがる湖、中海(なかうみ)を有する、豊かな自然環境に恵まれた街。米子丸子線から北へ、集落を抜け山道を走ると、鴨ヶ池と新堤池を背にした茶色い瓦の住宅が現れる。母屋は、8DKと部屋数が多く、続き間になっている部屋は襖を取り、広く使用することもできる。母屋の他に蔵と倉庫があるが蔵は使用する事が難しい状態。倉庫は農機具を置ける充分な広さだ。定住して新規就農の手続きをし、自然に囲まれた静かな環境で四季の移ろい感じながらの生活を始めてみませんか。
【オンライン見学はこちらから】
→ここをクリック
物件No.
17666T
所在地
鳥取県米子市福万
種別
農地付住宅
地目
宅地、畑、原野
土地面積
11942.76㎡(3612.68坪)
建物構造
木造板葺2階建
床面積1階
150.01㎡(45.37坪)
床面積2階
47.86㎡(14.47坪)
延面積
197.87㎡(59.84坪)
築年
不詳年
接道状況
南側が幅約2.5mの舗装私道に接する(一部他人地を通行)
都市計画
区域外
設備
電気、井戸、水洗(浄化槽)、PG
交通
伯備線岸本駅より約5.1km、山陰本線米子駅より約13.5km、米子自動車道大山高原スマートICより約3.7km
生活
フーズマーケットホック、ホームセンターへ約6.6km、コンビニへ約8km、伯耆中央病院へ約9.2km、役場へ約14km
法令
農地法 米子市景観計画 国土利用計画法
標高
173m
建物備考
未登記建物有(倉庫、蔵)
