




田舎暮らし
物件を探す

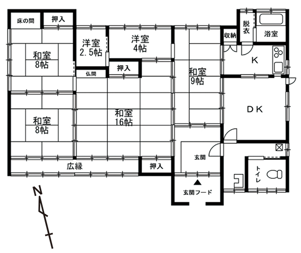
宮古そばの産地と飯豊山の登山口として名高い喜多方市山都町は、日本海へ流れる阿賀川支流の一ノ戸川はイワナやヤマメの渓流釣りが人気の清流だ。その更に支流にあたる早稲谷川沿いの昔ながらの集落にあるのが今回の物件。敷地内には江戸時代後期よりこの地に佇むと推測される古民家と、車庫と納屋の計3棟、そして宅地に隣接する原野がセットになっている。古民家は現状空き家だが水回りやリビングは現代風にリフォームされており、和室も築年を感じさせないほど良好な状態を維持している。屋根は右半分が色褪せているため、屋根周りを修繕するだけでより一層魅力的な古民家になるだろう。
【オンライン見学はこちらから】
→ここをクリック
物件No.
17668T
所在地
福島県喜多方市山都町早稲谷字下唐沢
種別
古民家
地目
宅地、宅地、原野、畑
地勢
平坦地
土地面積
1764.57㎡(533.78坪)
建物構造
木造亜鉛メッキ鋼板葺平家建
床面積1階
149.31㎡(45.16坪)
延面積
149.31㎡(45.16坪)
築年
不詳年
接道状況
南側が幅約3mの舗装公道に接する
都市計画
区域外
設備
電気、公営水道、公共下水、PG
交通
磐越西線山都駅より約10.7km、喜多方駅より約15.8km、会津縦貫北道喜多方ICより約18km、磐越道会津坂下ICより約23.2km
生活
山都ショッピングセンターへ約10.1km、ファミリーマートへ約12km、診療所へ約14.2km、コメリへ約14.3km、いいでの湯へ約8.4km、山都総合支所へ約9.9km
法令
農地法、農振法(白地)、土砂災害警戒区域、喜多方市景観条例
標高
303m
建物備考
�@物置、木造亜鉛メッキ鋼板葺2階建(1階49.68�u・2階49.68�u)、昭和57年10月築�A車庫、軽量鉄骨造亜鉛メッキ鋼板葺平家建(1階14.90�u)、昭和60年7月築
備考
ため池浸水区域内。離れの車庫については、現在近隣住民に使用貸借中。国土調査未実施地域のため、公図と現況が大幅に異なります。
