




田舎暮らし
物件を探す

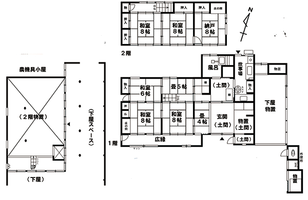
渡良瀬遊水地の玄関口に位置した旧北川辺町。埼玉県内で唯一町全域が利根川の左岸(北側)にあり、広大な水田が広がる農村地帯。群馬、栃木、茨城に接する珍しい立地で、県の北東に位置する大利根町や騎西町と共に旧加須市と合併した。物件はひだまりの農村集落の中にある元農家で、瓦屋根の母屋と大きな下屋のある農機具小屋、古い木造畜舎が残っている。長期間利用されていなかった母屋は随所に傷みが見られるが、年代物の建具や部材、調度品などが残っている。現地再生するには厳しい状況だが、平坦で長方形の広い792坪を活かした利用方法がある方にお譲りしたい。
【オンライン見学はこちらから】
→ここをクリック
物件No.
17754A
所在地
埼玉県加須市飯積
種別
古民家
地目
宅地、畑、畑
地勢
平坦地
土地面積
2618.57㎡(792.11坪)
建物構造
木造瓦葺2階建
床面積1階
132.23㎡(39.99坪)
床面積2階
53.71㎡(16.24坪)
延面積
185.94㎡(56.23坪)
築年
56.23年
改築年
木造瓦葺2階建
接道状況
南側が幅約6m、北側が幅約m3.2の舗装公道に接する
都市計画
区域内 非線引区域
用途地域
無指定地域
建ぺい率
60%
容積率
200%
設備
電気、公営水道、汲み取り、PG
交通
東武日光線柳生駅より約3.6km、東北道加須ICより約10.2km
生活
マルヤへ約3km、セブンイレブンへ約2.3km、診療所へ約4km、北川辺西小へ約2.1km、北川辺西中へ約3.4km、北川辺支所へ約3.2km、市役所へ約11km、道の駅・おおとねへ約4.3km、
標高
792.11m
建物備考
他に納屋2つ、炊事場の登記あり。
備考
※農地は買主様の利用用途とともに、市と再協議を行う必要があります。地目変更後もしくは3条許可を経て、引渡しとなります。
