




田舎暮らし
物件を探す

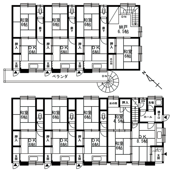
摩周湖、屈斜路湖があり、道東の観光地として中心的な町である弟子屈町。物件はその市街地の南側、市街を流れる鐺別川の南岸に広がる泉地区にある。摩周厚生病院をはじめ、認定こども園、特養ホームなどが集まり、周囲は閑静な住宅街となっている地域。物件は病院の西側、一丁目にある古いアパート。手前の居住スペースと奥のアパート棟が一体となった建物で、居住スペースは現在賃貸中。アパート棟も一部賃貸していたが現在は空室。概ね老朽化しているので倉庫利用や比較的状態の良い居室から手を入れて利用したい。鐺別河川敷パークゴルフ場まで250m、泉の湯までも700mと徒歩で行ける距離にある。
物件No.
17979T
所在地
北海道川上郡弟子屈町泉一丁目
種別
アパート
地目
宅地
地勢
平坦地
土地面積
293.18㎡(88.68坪)
建物構造
木造亜鉛メッキ鋼板葺2階建
床面積1階
123.12㎡(37.24坪)
床面積2階
103.68㎡(31.36坪)
延面積
226.8㎡(68.6坪)
築年
昭和 43年
接道状況
南側が幅約8mの舗装公道に接する
都市計画
区域内 非線引区域
用途地域
第一種低層住居専用地域
建ぺい率
40%
容積率
60%
設備
電気、公営水道、汲み取り(公共下水接続可)、PG
交通
釧網本線摩周駅より1km、中標津空港より約51km、釧路空港より68.3km、女満別空港より65.2km
生活
フクハラへ1.7km、セブンイレブンへ850m、摩周厚生病院へ150m、弟子屈小へ550m、弟子屈中へ1.7km、役場へ900m、道の駅摩周温泉へ1.9km
法令
弟子屈町景観計画
標高
102m
