




田舎暮らし
物件を探す

喜多方市熊倉町にある恋人坂は、雄国山からのなだらかな丘陵地帯にある一本道で、会津盆地の代表的なフォトスポットとして知名度が高い。その沿道の喜多方ロマンチック街道の麓にある昔ながらの農村集落の一角にある古民家が今回の物件。明治以前から佇む母屋の他には倉庫が3棟建ち並び、ここがかつて大農家であったことを偲ばせる配置で、近隣の棚田に点在する農地もセットでの引渡しになる。母屋は屋根や躯体はしっかりしており、水回りを中心にリフォームすれば快適に過ごすことが出来るだろう。塩川町は会津若松と喜多方の中間地点で、川から離れているためハザードマップにも現状指定されていない比較的災害低リスクゾーン。
物件No.
18066T
所在地
福島県喜多方市塩川町五合字南屋敷
種別
古民家
地目
宅地、雑種地、畑、田
地勢
平坦地・ひな壇
土地面積
23521.43㎡(7115.23坪)
建物構造
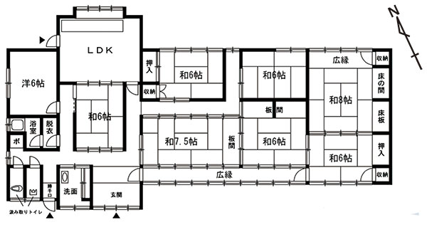
木造草葺平家建
床面積1階
156.19㎡(47.24坪)
延面積
156.19㎡(47.24坪)
築年
不詳年
改築年
昭和 49年
接道状況
南側と南東側が幅約5mの舗装公道に接する
都市計画
区域内 非線引区域
用途地域
無指定地域
建ぺい率
60%
容積率
200%
設備
電気、公営水道、汲み取り(要合併浄化槽)、PG
交通
磐越西線姥堂駅より約3.5km、塩川駅より約4km、会津道塩川ICより約4.3km、磐越道磐梯河東ICより約11.3km
生活
イオンタウン塩川へ約3km、セブンイレブンへ約3.3km、クリニックへ約3km、花しょうぶの湯へ約3.9km、コメリへ約3.3km、塩川総合支所へ約3.9km
法令
農地法、農振法(白地・青地)、国土利用計画法、福島県水源地域保全条例、喜多方市景観条例
標高
195m
建物備考
未登記附属建物:①倉庫、床面積26.45㎡、昭和33年築・②作業所、床面積158.67㎡、昭和52年築・③外便所、床面積41.32㎡、昭和53年築
備考
告知事項あり(詳しくはお問い合わせください)
