




田舎暮らし
物件を探す

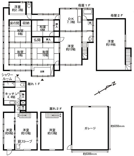
鹿野山やマザー牧場などの山間部と、海水浴場や漁港など海沿い楽しみもある富津市。物件は、周回全長約11�qのハイキングコースになっている梨沢渓谷の近くにある。周囲は山林。緑に囲まれた環境にポツン建物が佇む。母屋が7DK、離れが3Kという間取りは、友人など、たくさん人を呼べる。車庫の他、母屋前には駐車スペースがある。室内は全体的に丁寧に使用されており、綺麗な印象。物件入口には、日当たりが良い、菜園スペースもあるので、週末利用としても良さそうだ。都心からのアクセスが良い富津市、サイクリングやマリンスポーツ等も楽しめるセカンドハウスとして検討してみたいオススメ物件だ。
【オンライン見学はこちらから】
→ここをクリック
物件No.
18201C
所在地
千葉県富津市梨沢字樋田
種別
住宅
地目
宅地、山林、宅地、山林
地勢
平坦地、傾斜地
土地面積
1490.39㎡(450.84坪)
建物構造
木造瓦葺2階建
床面積1階
141.36㎡(42.76坪)
床面積2階
18.2㎡(5.5坪)
延面積
159.56㎡(48.26坪)
築年
不詳年
接道状況
北側が幅約2.7mの舗装公道に接する
都市計画
区域外
設備
電気、井戸、水洗(浄化槽)、PG
交通
内房線上総湊駅より約7km、東関東自動車道館山線鋸南保田ICより約11.2km
生活
おどや鋸南店へ約13.1km、セブンイレブン へ約15.1km、天羽診療所へ約5.2km、、富津市役所天羽行政センターへ約7.2km
法令
土砂災害警戒区域(一部)、土砂災害警戒区域(一部)
建物備考
離れ(増築「未登記)面積39.74�u(増築部分未登記)構造:木造/瓦葺/2階建 車庫(未登記)面積構造ともに不明
