




田舎暮らし
物件を探す

喜多方市山都町は飯豊山の登山口としての宿場町や、ブランドである宮古そばの一大産地として有名で、四季折々の景色が美しい田舎暮らしにはちょうど良いロケーションが広がっている。今回の物件は阿賀川水系の五枚沢川の川沿いにある物件で、絶えず川のせせらぎやウグイスを始めとした鳥の鳴き声が聴こえる落ち着いた環境。物件には築50年の母屋とそれ以前の土蔵や倉庫が多い農家で、葦の草原が広がっている農地はかつてタバコを生産していた過去がある。開拓者精神のある方は一から整地して作物が実る大地を作り上げて頂きたい。母屋は状態的に休憩所や作業所として使うのが望ましいだろう。
【オンライン見学はこちらから】
→ここをクリック
物件No.
18218T
所在地
福島県喜多方市山都町相川字樋越
種別
民家
地目
宅地、宅地、畑、田
地勢
平坦地
土地面積
2474.02㎡(748.39坪)
建物構造
木造亜鉛メッキ鋼板葺2階建
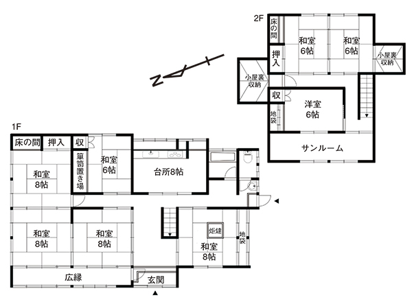
床面積1階
115.75㎡(35.01坪)
床面積2階
46.37㎡(14.02坪)
延面積
162.12㎡(49.03坪)
築年
昭和 48年
接道状況
西側が幅約3mの舗装公道に接する
都市計画
区域外
設備
電気、公営水道、簡易水洗(汲み取り)、PG
交通
磐越西線山都駅より約8km、喜多方駅より約12.5km、会津縦貫北道喜多方ICより約14.8km、磐越道会津坂下ICより約20.4km
生活
スーパーブイチェーンへ約10.1km、ファミリーマートへ約9.4km、ホームセンターコメリへ約10.6km、山都診療所へ約7.3km、郵便局へ約2.4km、市役所支所へ約7.1km
法令
農地法、土砂災害警戒区域、喜多方市景観条例
標高
227m
建物備考
敷地内にある倉庫は相続登記未了建物のため、使用貸借での引き渡しとなります。
