




田舎暮らし
物件を探す

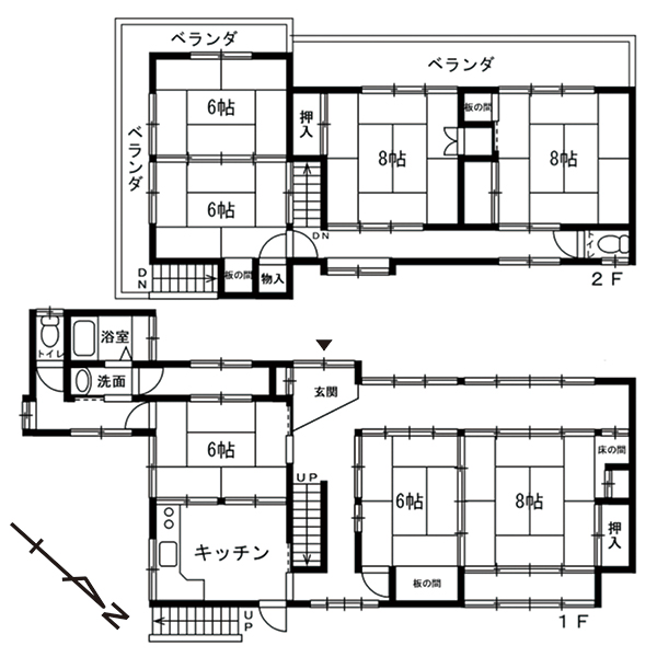
小鹿野町は歌舞伎の町として知られ数々の歌舞伎ファンから愛されている。物件は人気の道の駅『両神温泉薬師の湯』から近い。7部屋と部屋数が多いのは大家族には魅力的だ。この物件は2階バルコニーからの眺望が良く秩父の澄み渡った山々が並ぶ。美しい景色を是非楽しんで頂きたい。現在は故障をしているが井戸もあり魚を飼う方は良好な水での飼育ができる。物件の近くには畑と山林もある。畑ではサツマイモやネギを育てるも良し。山林ではシイタケを育てるも良し。庭で採った野菜と秩父のお肉で家族団欒でバーベキューをするのは最高だ。この物件であなたは楽しい日々を送れる事だろう。
物件No.
18267A
所在地
埼玉県秩父郡小鹿野町飯田幅ノ上
種別
住宅
地目
宅地、畑、山林
地勢
平坦地
土地面積
1589.72㎡(480.89坪)
建物構造
木造亜鉛メッキ鋼板葺2階建
床面積1階
102.89㎡(31.12坪)
床面積2階
81.32㎡(24.59坪)
延面積
184.21㎡(55.71坪)
築年
昭和 48年
改築年
昭和 57年
接道状況
北西側が幅約3.5mの舗装公道に接する
都市計画
区域内 非線引区域
用途地域
無指定地域
建ぺい率
70%
容積率
200%
設備
電気、公営水道、合併浄化槽、PG
交通
秩父鉄道秩父駅より約15.3km、上里サービスエリアより約40.7km
生活
ラコマートへ約2.7km、セブンイレブンへ約2.6km、病院へ約3.1km、コメリへ約2.4km、薬師の湯へ約4.5km、小鹿野郵便局へ約3.6km
法令
農振法(青地)、農地法、埼玉県景観区域
標高
292m
