




田舎暮らし
物件を探す

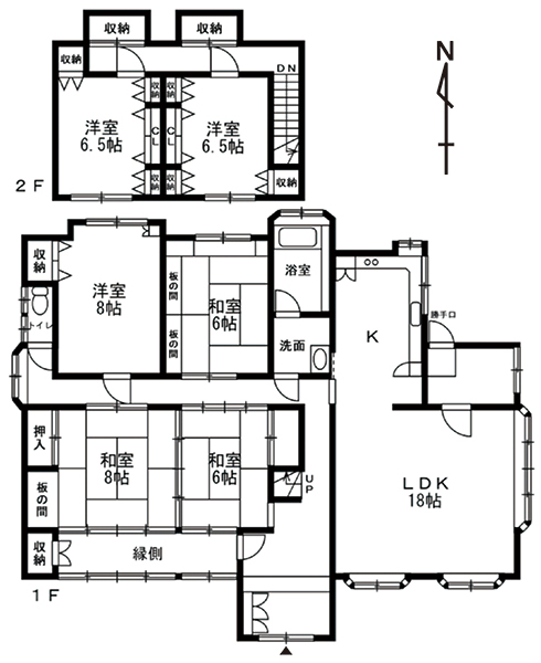
埼玉県南西部に位置する入間市は豊かな自然と市街地が調和する街で四季折々の美しい風景を楽しみながらアウトレットモールやコストコの商業施設も堪能できる贅沢な街である。所沢インターから国道463号経由をすれば約40分で都心へ行けるので、田舎暮らしをしながら東京で働くことも可能だ。物件は市街地から離れた場所に昭和41年新築、平成5年増築の建物が建つ。内装は綺麗で部屋数も多くすぐにでも家族を連れて移住する事ができる。LDKには大きいキッチンが付いているので家族や友人と一緒に料理を楽しむ事ができる開放感がある。幼稚園、小学校も近いので子育て世代には生活しやすい。
【オンライン見学はこちらから】
→ここをクリック
物件No.
18313A
所在地
埼玉県入間市下谷ヶ貫根道
種別
住宅
地目
宅地
地勢
平坦地
土地面積
377.88㎡(114.3坪)
建物構造
木造瓦葺2階建
床面積1階
168.56㎡(50.98坪)
延面積
168.56㎡(50.98坪)
築年
昭和 41年
改築年
平成 5年
接道状況
西側が幅約6mの舗装公道に接する。北側が幅約7.6mの舗装公道に接する。
都市計画
区域内 市街化調整区域
用途地域
無指定地域
建ぺい率
60%
容積率
200%
設備
電気、公営水道、単独浄化槽、PG
交通
八高線金子駅より約2.0km、中央連絡自動車道入間ICより約15.4km
生活
ベルク飯能店へ約2.5km、セブンイレブンへ約800m、病院へ約1.4km、コストコへ約5.5km、いるまの湯へ約6.1km、役場へ約5.5km
法令
埼玉県景観条例
標高
ベルク飯能店へ約2.5km、セブンイレブンへ約800m、病院へ約1.4km、コストコへ約5.5km、いるまの湯へ約6.1km、役場へ約5.5kmm
建物備考
未登記のため各階面積不明。
