




田舎暮らし
物件を探す

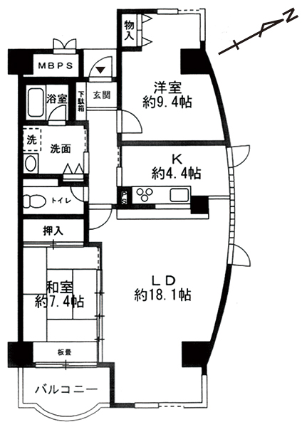
北杜市高根町にあるマンション「スターガーデン八ヶ岳高原」。国道141号線よりわずかに入った場所に位置する。周囲には畑があり、また高い建物がないため見晴らしがいい。当初は、リゾートマンションとして建てられたものだが、現在は60戸ある部屋の約半数は定住している。本物件は、4階の角部屋にある2LDK。数年前にリビングと和室のクロスの張替え、キッチンのリフォームをしている。マンションには、コインランドリー、ジム、カラオケルーム、図書室が併設。管理人が従事しており、管内は綺麗に保たれている。インター、ス-パーなどからもアクセスがよく、二拠点での利用はもちろん、定住希望の方にもおすすめ。
物件No.
18330Y
所在地
山梨県北杜市高根町村山東割矢捨
種別
住宅
地目
山林
地勢
平坦地
土地面積
1857㎡(561.74坪)
建物構造
RC造陸屋根7階建
延面積
81.3㎡(24.59坪)
築年
平成 4年
接道状況
北側が幅約5mの舗装公道に接する。
都市計画
区域外
建ぺい率
50%
容積率
100%
設備
電気、公営水道、集中浄化槽、IH
交通
中央本線長坂駅より約7.3km、中央道長坂ICより約4.8km 車で9分
生活
高根総合支所、コンビニ、郵便局へ約2.1〜2.6km、小学校へ約1.6km、甲陽病院へ約5.3km
法令
北杜市まちづくり条例
標高
770m
建物備考
エレベーター、コインランドリー、ジム、カラオケルーム、図書室。4階401号室
備考
管理費42,620円/月(修繕積立金含む)、駐車場:無料41台(うち敷地外23台)
