




田舎暮らし
物件を探す

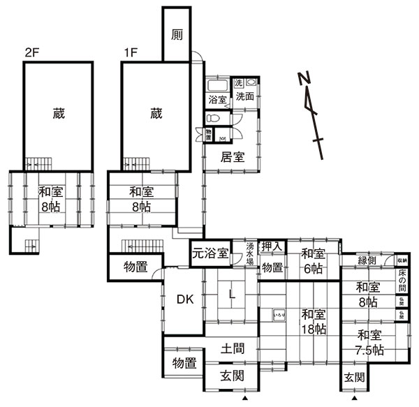
山形県高畠町二井宿はその地名から察する通り、江戸時代の参勤交代で賑わった羽州街道の宿場町として機能し、現在でも置賜地方と宮城県七ヶ宿町を結ぶルート上に位置している。今回の物件は伝承によると、実際に参勤交代が行われていた江戸時代中期、約300年前に建てられたという歴史ある古民家。敷地内には2つの独立した土蔵があり、母屋と土蔵が一体になっている複雑な間取りは、これまで幾度も増改築を繰り返してきたと予想される。車で片道10分程度で高畠町中心部へアクセス出来るため利便性は良く、最寄りの高畠駅からは山形新幹線で東京駅まで1本で行けるため首都圏との往復も楽々だ。
物件No.
18334T
所在地
山形県東置賜郡高畠町二井宿字宮下
種別
古民家
地目
宅地、宅地
地勢
平坦地
土地面積
1235.48㎡(373.73坪)
建物構造
木造草葺2階建
床面積1階
221.96㎡(67.14坪)
床面積2階
57.19㎡(17.29坪)
延面積
279.15㎡(84.43坪)
築年
附属建物①:倉庫、土蔵造草葺2階建、1階26.44㎡、2階26.44㎡附属建物②:倉庫、土蔵造草葺平家建、1階26.44㎡年
改築年
不詳
接道状況
南側が幅約3mの舗装公道に接する
都市計画
区域外
設備
電気、公営水道、単独浄化槽、PG
交通
奥羽本線(山形線)・山形新幹線高畠駅より約10.2km、赤湯駅より約12.9km、東北中央道南陽高畠ICより約9.5km、東北道白石ICより約52.5km
生活
スーパーヤマザワへ約9.6km、ローソンへ約9.5km、公立病院へ約9.6km、道の駅へ約6.3km、コメリへ約9.7km、町役場へ約9.8km
法令
山形県景観条例、文化財保護法(宮下遺跡)
標高
奥羽本線(山形線)・山形新幹線高畠駅より約10.2km、赤湯駅より約12.9km、東北中央道南陽高畠ICより約9.5km、東北道白石ICより約52.5kmm
建物備考
附属建物①:倉庫、土蔵造草葺2階建、1階26.44㎡、2階26.44㎡附属建物②:倉庫、土蔵造草葺平家建、1階26.44㎡
備考
近隣農地の売買については別途相談。河川浸水想定区域(0.5-3.0m未満)
