




田舎暮らし
物件を探す

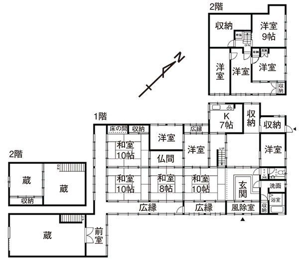
山形県朝日町は県内随一のりんごタウンとして名を馳せており、町内の至る所にりんご畑や直売所が点在し、フルーツ王国山形の一員として現在に至っている。最上川が流れる町中心部から朝日岳方向へ山道を車で登ること約15分、国指定文化財に選ばれた名勝「大沼の浮島」のある大沼集落の一角にある大きな青い屋根の古民家が今回の物件。建物は土蔵とドッキングした東北らしい構造で、室内は水回りを中心にかなり手を入れているため、文字通り即入居可の状態を維持している美邸。囲炉裏や掘り炬燵、そば道場、ストーブのある談話室など、魅力溢れたアイテムで埋め尽くされた自慢の古民家である。
物件No.
18356T
所在地
山形県西村山郡朝日町大沼鳥谷沢
種別
古民家
地目
宅地、宅地
地勢
高台
土地面積
1497.27㎡(452.92坪)
建物構造
木造草葺2階建
床面積1階
294.92㎡(89.21坪)
床面積2階
66.82㎡(20.21坪)
延面積
361.74㎡(109.42坪)
築年
不詳年
接道状況
東側が幅約6mの舗装公道に接する
都市計画
区域外
設備
電気、公営水道、合併浄化槽、PG
交通
左沢線左沢駅より約13.8km、フラワー長井線荒砥駅より約22.8km、山形新幹線山形駅より約32km、山形道寒河江スマートICより約17.8km、山形空港より約29km
生活
スーパーフレッシュストアへ約7.6km、コンビニへ約8.2km、町立病院へ約7.3km、道の駅りんごの森へ約9.8km、りんご温泉へ約9.3km、町役場へ約7.6km
法令
土砂災害警戒区域、山形県景観条例
標高
316m
