




田舎暮らし
物件を探す

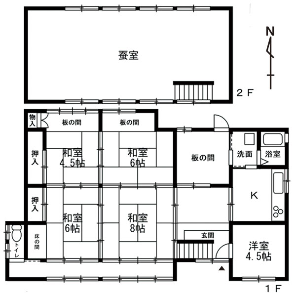
埼玉県の北西部に位置する寄居町は日本の町村で唯一3つの鉄道事業者が乗り入れている町である。荒川が流れ四季折々の自然を楽しむ事ができるのが魅力だ。物件は農村地帯に建ち、周りに家も少なく人目に付かない場所で静かに過ごせる物件を探している方にお勧めである。敷地内の母屋には6部屋ある居室の2階は昔ながらの蚕室、物置も2棟建ち日本の古き良き文化を体現できるのが魅力だ。室内を現代風にリノベーションをして流行りの和モダンな雰囲気を融合させた唯一無二の住まいにするのも良いだろう。寄居スマートICから近いため田舎暮らしをしながら都心に遊びにいけるので生活に不便はない。
物件No.
18380A
所在地
埼玉県大里郡寄居町用土梨子ノ木
種別
住宅
地目
宅地、宅地、畑
地勢
平坦地
土地面積
2977.04㎡(900.55坪)
建物構造
木造瓦葺2階建
床面積1階
120.37㎡(36.41坪)
床面積2階
29.81㎡(9.01坪)
延面積
150.18㎡(45.42坪)
築年
昭和 40年
接道状況
東側、北側が幅員約6.0m、西側、南側が幅員約4.0mの舗装公道に接する。
都市計画
区域内 非線引区域
用途地域
無指定地域
建ぺい率
60%
容積率
200%
設備
電気、公営水道、汲み取り、PG
交通
八高線用土駅より約2.8km、関越」自動車道花園ICより約5.6km
生活
ジョイフーズ美里店へ約4.6km、セブンイレブンへ約2.6km、病院へ約3.9km、郵便局へ約2.1km、花園温泉へ約6.2km、役場へ約6.2km
法令
農地法、埼玉県景観条例
建物備考
※未登記(現金で買う方のみ) 付属建物 �@物置 木造瓦葺平屋建 79.33�u �A車庫兼物置 木造亜鉛メッキ鋼板葺 50.92�u
