




田舎暮らし
物件を探す

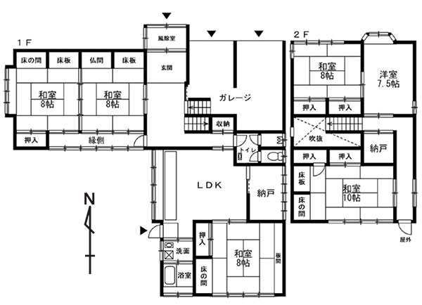
庄内平野の東端にある酒田市松山地区は、かつて出羽松山城のあった城下町の面影を色濃く残しており、町内には城址公園や資料館といった城に関連する施設が点在している。廃校となった旧松山中学校の真向かいにある薄水色の建物が今回の物件。普通車2台分は入るガレージ付きのため、冬期も野晒しにならずメンテナンスも楽々。居室の状態も概ね良好のため、キッチンや浴室等のリフォームを行うことで更に快適な住環境になるだろう。野菜が育てられる菜園スペースと物置も鎮座しており、南向きで隣地に建物がないため日当たりも良く、周りも程よく住宅が建ち並んでいるため寂しさは感じない。
物件No.
18394T
所在地
山形県酒田市内町
種別
住宅
地目
宅地、宅地
地勢
平坦地
土地面積
438.12㎡(132.53坪)
建物構造
木造瓦葺2階建
床面積1階
136.12㎡(41.17坪)
床面積2階
67.81㎡(20.51坪)
延面積
203.93㎡(61.68坪)
築年
昭和 52年
改築年
平成 1年
接道状況
北側が幅約8mの舗装公道に接する
都市計画
区域外
設備
電気、公営水道、公共下水、PG
交通
羽越本線余目駅より約6.5km、山形新幹線新庄駅より約42.1km、日東道酒田中央ICより約10.5km、庄内空港より約19.5km
生活
スーパーマックスバリュへ約6.9km、セブンイレブンへ約5.4km、診療所へ約850m、ツルハドラッグへ約7km、郵便局へ約700m、松山総合支所へ約850m
法令
酒田市景観条例、文化財保護法(松山城跡・中山館跡)
標高
37m
建物備考
未登記附属建物:木造・物置・床面積11.57㎡・平成1年7月築
