




田舎暮らし
物件を探す

伊東市は豊かな自然と温泉が調和する魅力あふれる街である。雄大な富士山を望む絶景、波打ち際が続く海岸線、そして温泉街の活気は、多くの人々を惹きつけている。物件は豊かな自然に囲まれたリゾート地、伊豆高原別荘地に建つ。4SDK+カウンター、暖炉付きのお洒落な室内は日常生活から切り離されたような特別な住まいとしてあなたに刺激を与えてくれることだろう。去年、内外装のリフォームをしたばかりの綺麗な住まいで居宅件カフェを開くのも面白い。温泉の引込も可能なので自分の好きなタイミングで毎日でも入浴できるのは最高だ。物件からはパワースポットとして知られる大室山が見えて眺望も良い。
物件No.
18396A
所在地
静岡県伊東市池下林
種別
住宅
地目
宅地
地勢
平坦地
土地面積
510.15㎡(154.32坪)
建物構造
軽量鉄骨造2階建
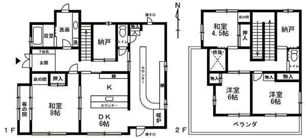
床面積1階
90.5㎡(27.37坪)
床面積2階
54.29㎡(16.42坪)
延面積
144.79㎡(43.79坪)
築年
平成 9年
接道状況
南側が幅約10mの舗装公道、西側が幅約5.5m舗装私道に接する。
都市計画
区域内 非線引区域
用途地域
無指定地域
建ぺい率
20%
容積率
60%
設備
電気、私営水道、水洗(浄化槽)、PG
交通
伊豆急行線線伊豆高原駅より約2.4km、伊豆スカイライン天城高原ICより約8.5km、南大室台バス停から190m
生活
マックスバリュー伊豆高原店へ約2.0km、セブンイレブンへ約2.1km、病院へ約2.5km、伊豆高原の湯約2.4km、赤澤日帰り温泉館へ約5.1km、役場へ約2.7km
法令
自然公園法、がけ条例、22条指定地域、静岡県民泊条例、伊東市景観条例
建物備考
温泉利用の場合(権利金)5 :2200000円・7.5 :2750000円(分岐工事)18700円(メーター廻り装置代)22367円 管理費/年(個人)19200円(法人)78600円 別荘規約あり
備考
西側道路、位置指定あり、25/4内装キッチントイレリフォーム済み
