




田舎暮らし
物件を探す

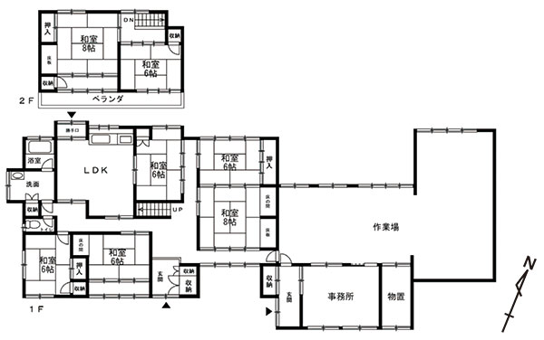
4-11月の土日祝を中心に、磐越西線(新津 会津若松)で運行される「SLばんえつ物語号」は、今や数少ない蒸気機関車として毎年多くの観光客を引き寄せている。そんな磐越西線からすぐの場所にある農家住宅が今回の物件で、敷地から磐梯山も見渡せる会津盆地のど真ん中に位置している。建物は2年前まで空き家だったため生活感はあるが、居住にあたってリフォームや一部建物の整理も望ましいだろう。調整区域だが線引き前住宅のため建て替え相談も可能で、内容によっては店舗や宿泊施設としての用途変更も、近年は規制が緩和されていると耳にする。インターや会津アピオも近いため利便性も良好。
物件No.
18398T
所在地
福島県会津若松市高野町平塚
種別
民家
地目
宅地、畑、雑種地
地勢
平坦地
土地面積
1504.58㎡(455.13坪)
建物構造
木造レヂノ鉄板葺2階建
床面積1階
125.22㎡(37.87坪)
床面積2階
36.33㎡(10.98坪)
延面積
161.55㎡(48.85坪)
築年
昭和 40年
改築年
昭和
接道状況
南西側が幅約5mの舗装公道に接する。
都市計画
区域内 市街化調整区域(再建築可)
建ぺい率
60%
容積率
200%
設備
電気、公営水道、単独浄化槽、PG
交通
磐越西線広田駅より約2.6km、堂島駅より約2.8km、会津若松駅より約4.2km、会津道会津若松北ICより約750m、磐越道会津若松ICより約2.1km
生活
会津アピオへ約2.6km、セブンイレブンへ約1km、会津医療センターへ約2.3km、大江戸温泉物語あいづへ約4.1km、コメリへ約3.9km,、会津若松市河東支所へ約2.7km
法令
農地法、会津若松市景観条例
標高
194m
建物備考
①作業所、木造平家建、床面積99.43㎡、昭和41年築、昭和49年増築②倉庫、木造2階建、床面積132.49㎡、昭和56年築
