全国 田舎暮らし物件 > 福島県 > 囲炉裏・薪ストーブ・サウナのある、湿地感のある庭付きのリゾート別荘
福島県 天栄村 [住宅]
物件No.18325T
囲炉裏・薪ストーブ・サウナのある、湿地感のある庭付きのリゾート別荘800万円
この物件について問い合わせるしつこい営業は一切致しませんので、安心してお問い合わせください。
現地へのご案内や、ネットでは公開していない詳細情報をお知らせします。
現地へのご案内や、ネットでは公開していない詳細情報をお知らせします。
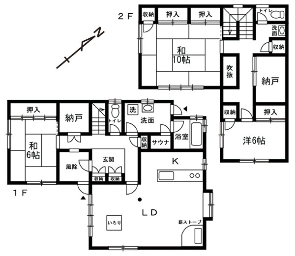
春は山菜採り、夏はキャンプ、秋は紅葉狩り、冬はスキーと1年を通して、様々な余暇を満喫出来るのが魅力の福島県南部の羽鳥湖高原。太平洋クラブ白河リゾートのゴルフ場南側の角地にあるのが今回の物件。白い外壁に三角屋根が特徴の建物で、敷地内の庭はかつて水芭蕉が咲いていた湿地のような原生林感がある。建物はデッキ付きの木造2階建で、広いウッディなリビングは囲炉裏と薪ストーブがあって、冬でも別荘暮らしを満喫させてくれるアイテムが揃っている。一般住宅としては珍しく家庭用サウナ室も設けられており、屋外にプールも用意すれば自宅でお手軽なととのい体験も楽しめそうだ。
| 物件No. | 18325T |
|---|---|
| 所在地 | 福島県岩瀬郡天栄村田良尾芝草 |
| 種別 | 住宅 |
| 地目 | 山林、山林、山林 |
| 地勢 | 緩傾斜地 |
| 土地面積 | 1821㎡ (550.85坪) |
| 建物面積 | 129.18㎡ (39.07坪) |
| 建物構造 | 木造亜鉛鉄板葺2階建 |
| 築年 | 平成1年 |
| 床面積1階 | 77.01㎡ (23.29坪) |
| 床面積2階 | 52.17㎡ (15.78坪) |
| 接道状況 | 南東側が幅約10m、南西側が幅約6m、北側が幅約6mの舗装私道に接する |
| 都市計画 | 区域外 |
| 建ぺい率 | 20% |
| 容積率 | 40% |
| 法令 | 大川羽鳥県立自然公園(普通地域)、森林法、福島県景観条例 |
| 標高 | 913m |
| 設備 | 電気、私営水道、合併浄化槽、PG |
| 交通 | 会津線湯野上温泉駅より約24.5km、東北本線新白河駅より約25.1km、東北道白河ICより約25.9km |
| 生活 | スーパーリオンドールへ約24.7km、セブンイレブンへ約24km、太陽の国病院へ約26.5km、コメリへ約23.8km、村役場へ約26km |
| 備考2 | 水道利用料:年間12,000円、共益費:年間15,000円 |
情報更新日:2026/01/16
この物件について問い合わせる
しつこい営業は一切致しませんので、安心してお問い合わせください。
現地へのご案内手配や、ネットでは公開していない詳細情報・ご質問事項をお答えいたします。
(※ご見学前に特別にお送りする資料等はご用意しておりませんのでご了承ください)
現地へのご案内手配や、ネットでは公開していない詳細情報・ご質問事項をお答えいたします。
(※ご見学前に特別にお送りする資料等はご用意しておりませんのでご了承ください)
※掲載されている図面・データが現況と異なる場合は、現況を優先します。





















































