全国 田舎暮らし物件 > 栃木県 > 2家族、仕事、趣味に活用でできる、敷地中央に小川が流れる2棟
栃木県 那須町 [住宅]
物件No.18375C
2家族、仕事、趣味に活用でできる、敷地中央に小川が流れる2棟1500万円
この物件について問い合わせるしつこい営業は一切致しませんので、安心してお問い合わせください。
現地へのご案内や、ネットでは公開していない詳細情報をお知らせします。
現地へのご案内や、ネットでは公開していない詳細情報をお知らせします。
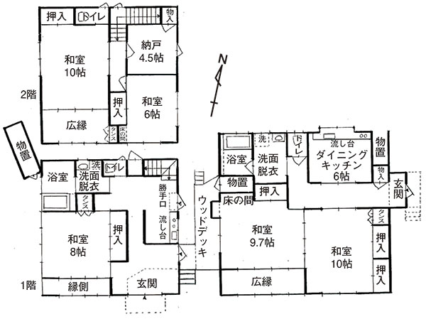
日帰り温泉やレストランなどが建ち並ぶ、那須街道から少し奥まった緑のなかに建つ。敷地中央には小川が流れる粋な雰囲気。駐車場と菜園、住宅とは橋で行き来するのも楽しい。住宅は平家と2階家の2棟で独立しているが、こちらもまたデッキで行き来する作り。2棟共手直しは要らない。それぞれに水回りがあるので2家族でも使える。片方を仕事・趣味、または賃貸でも良いだろう。住宅前は空き地のため陽当たりが良い、東側の菜園用地も暗くはない。車の往来は少ないので静かな場所。田代小学校前バス停からも歩けるのが嬉しい。考え方次第で如何様にも楽しみと利益が膨らむ物件。日帰り温泉・那須山へ1km、疲れた身体を気軽に癒せる。
| 物件No. | 18375C |
|---|---|
| 所在地 | 栃木県那須郡那須町高久乙字道東 |
| 種別 | 住宅 |
| 地目 | 山林、山林 |
| 地勢 | 平坦地 |
| 土地面積 | 862㎡ (260.75坪) |
| 建物面積 | 106㎡ (32.06坪) |
| 建物構造 | 木造瓦葺2階建 |
| 築年 | 平成12年 |
| 床面積1階 | 53㎡ (16.03坪) |
| 床面積2階 | 53㎡ (16.03坪) |
| 接道状況 | 東、南西側が幅約4.0mの舗装私道に接する。 |
| 都市計画 | 区域内 非線引区域 |
| 用途地域 | 無指定地域 |
| 建ぺい率 | 60% |
| 容積率 | 200% |
| 標高 | 400m |
| 設備 | 電気、公営水道、合併浄化槽、PG |
| 交通 | 宇都宮線黒磯駅より約7.9km、東北道那須ICより約2.7km、田代小学校前バス停より約0.4km |
| 生活 | スーパーダイユー那須高原店へ約3.3km、スーパーザビッグへ約6.0km、コメリホームセンターへ約3.3km、最寄コンビニへ約1.0km、郵便局へ約3.2km、道の駅友愛の森へ約2.9km、那須高原病院へ約6.1km、日帰り温泉那須山へ約1.0km、町役場へ約9.7km |
| 備考 | 平家 木造亜鉛メッキ鋼板葺平家建 81.09㎡(24.52坪) 平成3年9月築、物置 約2坪、固定資産税:70,600円、標高約400m |
情報更新日:2026/01/30
この物件について問い合わせる
しつこい営業は一切致しませんので、安心してお問い合わせください。
現地へのご案内手配や、ネットでは公開していない詳細情報・ご質問事項をお答えいたします。
(※ご見学前に特別にお送りする資料等はご用意しておりませんのでご了承ください)
現地へのご案内手配や、ネットでは公開していない詳細情報・ご質問事項をお答えいたします。
(※ご見学前に特別にお送りする資料等はご用意しておりませんのでご了承ください)
※掲載されている図面・データが現況と異なる場合は、現況を優先します。




































