全国 田舎暮らし物件 > 静岡県 > 目の前に子浦海岸が広がる人気の貸別荘
静岡県 南伊豆町 [その他]
物件No.18277A
目の前に子浦海岸が広がる人気の貸別荘980万円
この物件について問い合わせるしつこい営業は一切致しませんので、安心してお問い合わせください。
現地へのご案内や、ネットでは公開していない詳細情報をお知らせします。
現地へのご案内や、ネットでは公開していない詳細情報をお知らせします。
東京から電車で約2時間半の南伊豆町は伊豆半島全体が観光地として人気のエリアだ。特に南伊豆は海や山など大自然の風景が美しい。物件は国道より70mほど下ったすぐの好立地に母屋、別荘2棟の計3棟が建ち並ぶ。目の前には澄み切った子浦海岸が広がり満天の星空が眺められ、夏は花火を見ることができる。経営は好調だが高齢のため、現在は無理のない営業にシフトした。毎年夏の時期は2ヶ月間予約が埋まるほどの盛況ぶりだ。購入者には十数年経営したオーナーのノウハウを伝授。この物件で田舎暮らしと貸別荘オーナーの二刀流に挑戦してみてはいかがだろうか。
【オンライン見学はこちらから】
→ここをクリック
| 物件No. | 18277A |
|---|---|
| 所在地 | 静岡県賀茂郡南伊豆町子浦神田 |
| 種別 | その他 |
| 地目 | 宅地、宅地 |
| 地勢 | 平坦地 |
| 土地面積 | 501.76㎡ (151.78坪) |
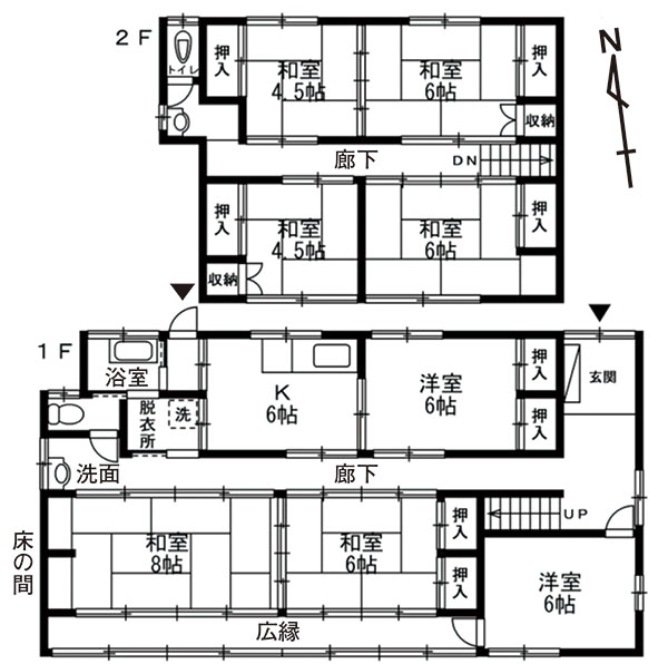
| 建物面積 | 101.85㎡ (30.8坪) |
| 建物構造 | 木造スレート葺2階建 |
| 築年 | 平成3年 |
| 床面積1階 | 63.76㎡ (19.28坪) |
| 床面積2階 | 38.09㎡ (11.52坪) |
| 接道状況 | 南西側が幅約4.5mの舗装公道に接する |
| 都市計画 | 区域内 非線引区域 |
| 用途地域 | 無指定地域 |
| 建ぺい率 | 70% |
| 容積率 | 300% |
| 法令 | 名勝伊豆西南海岸、静岡県建築基準法例第10条(がけ条例)、住居は土砂災害警戒区域、別荘2棟は土砂災害特別区域 |
| 設備 | 電気、沢水、公共下水、PG |
| 交通 | 伊豆急行線伊豆急下田駅より約22km、伊豆縦貫自動車道修繕時ICより約69km |
| 生活 | マックスバリューへ約11.8km、セブンイレブンへ約13.4km、病院へ約11.1km、子浦海岸へ約500m、下加茂温泉へ約11.4km、南伊豆役場へ約11.9km |
| 取引形態 | 媒介 |
| 備考 | 計3塔+物置 建物2 木造スレート葺2階建て 96.43㎡ 建物3 木造スレート葺2階建て 90.25㎡ 物置 木造スレート葺平家建 9.39㎡ |
| 備考2 | 水道新規加入権利金80万円 |
情報更新日:2026/02/05
この物件について問い合わせる
しつこい営業は一切致しませんので、安心してお問い合わせください。
現地へのご案内手配や、ネットでは公開していない詳細情報・ご質問事項をお答えいたします。
(※ご見学前に特別にお送りする資料等はご用意しておりませんのでご了承ください)
現地へのご案内手配や、ネットでは公開していない詳細情報・ご質問事項をお答えいたします。
(※ご見学前に特別にお送りする資料等はご用意しておりませんのでご了承ください)
※掲載されている図面・データが現況と異なる場合は、現況を優先します。



















































































