全国 田舎暮らし物件 > 山口県 > 瀬戸内海が目の前に広がる、様々な施設に転用可能な旅館
山口県 光市 [その他]
物件No.18382T
瀬戸内海が目の前に広がる、様々な施設に転用可能な旅館3500万円
この物件について問い合わせるしつこい営業は一切致しませんので、安心してお問い合わせください。
現地へのご案内や、ネットでは公開していない詳細情報をお知らせします。
現地へのご案内や、ネットでは公開していない詳細情報をお知らせします。
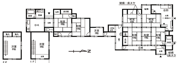
光市の室積地区は函館市と同様に砂州で地続きとなった陸繋島となっており、穏やかな瀬戸内海に囲まれたリゾート地して人気のエリア。今回の物件は釣り人で賑わう室積半島の住宅街突端に位置し、目の前に御手洗湾が広がる絶景が見どころの元介護施設兼住宅。新築時は上場企業の保養所として建てられたため、フロント・食堂・厨房・大浴場・客室に至るまで、全て旅館業を営むには申し分ない設備を完備。採光は北東向きの海側のため眺望もしっかり確保。建物は2階建旅館では珍しく堅固な鉄筋コンクリート造のため耐震性に優れており、隣には木造平家建もあるため常駐しながら施設運営も容易だ。
| 物件No. | 18382T |
|---|---|
| 所在地 | 山口県光市室積八丁目 |
| 種別 | その他 |
| 地目 | 宅地、宅地 |
| 地勢 | 平坦地 |
| 土地面積 | 1661.44㎡ (502.58坪) |
| 建物面積 | 740.05㎡ (223.86坪) |
| 建物構造 | RC造瓦葺2階建 |
| 築年 | 昭和63年 |
| 床面積1階 | 453.2㎡ (137.09坪) |
| 床面積2階 | 286.85㎡ (86.77坪) |
| 接道状況 | 南西側が幅約5mの舗装公道に接する |
| 都市計画 | 区域内 市街化区域 |
| 用途地域 | 第一種中高層住居専用地域 |
| 建ぺい率 | 60% |
| 容積率 | 200% |
| 法令 | 光市景観条例、山口県建築基準法施行条例(がけ条例) |
| 標高 | 3.5m |
| 設備 | 電気、公営水道、単独浄化槽(公共下水接続可)、PG |
| 交通 | 山陽本線光駅より約9km、山陽新幹線徳山駅より約23.8km、山陽道熊毛ICより約19.4km、岩国錦帯橋空港より約48km |
| 生活 | スーパーマックスバリュへ約3km、ローソンへ約2km、医院へ約1.6km、山口大附属小中へ約20m、ドラッグストアウォンツへ約2.7km、市役所へ約7.7km |
| 備考 | 附属建物:木造瓦葺平家建49.68㎡、昭和63年築 |
| 備考2 | 令和7年度固定資産税634,500円、都市計画税150,300円。津波ハザードマップ(0.3-2.0m未満)・高潮ハザードマップ(0.5-3.0m未満)区域。下水接続工事(約250万円)は今後買主負担になります。 |
情報更新日:2026/02/21
この物件について問い合わせる
しつこい営業は一切致しませんので、安心してお問い合わせください。
現地へのご案内手配や、ネットでは公開していない詳細情報・ご質問事項をお答えいたします。
(※ご見学前に特別にお送りする資料等はご用意しておりませんのでご了承ください)
現地へのご案内手配や、ネットでは公開していない詳細情報・ご質問事項をお答えいたします。
(※ご見学前に特別にお送りする資料等はご用意しておりませんのでご了承ください)
※掲載されている図面・データが現況と異なる場合は、現況を優先します。





































































































