全国 田舎暮らし物件 > 山形県 > 歴史ある羽州街道の宿場町、300年地域に根付いた古民家
山形県 高畠町 [古民家]
物件No.18334T
歴史ある羽州街道の宿場町、300年地域に根付いた古民家580万円
この物件について問い合わせるしつこい営業は一切致しませんので、安心してお問い合わせください。
現地へのご案内や、ネットでは公開していない詳細情報をお知らせします。
現地へのご案内や、ネットでは公開していない詳細情報をお知らせします。
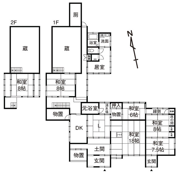
山形県高畠町二井宿はその地名から察する通り、江戸時代の参勤交代で賑わった羽州街道の宿場町として機能し、現在でも置賜地方と宮城県七ヶ宿町を結ぶルート上に位置している。今回の物件は伝承によると、実際に参勤交代が行われていた江戸時代中期、約300年前に建てられたという歴史ある古民家。敷地内には2つの独立した土蔵があり、母屋と土蔵が一体になっている複雑な間取りは、これまで幾度も増改築を繰り返してきたと予想される。車で片道10分程度で高畠町中心部へアクセス出来るため利便性は良く、最寄りの高畠駅からは山形新幹線で東京駅まで1本で行けるため首都圏との往復も楽々だ。
| 物件No. | 18334T |
|---|---|
| 所在地 | 山形県東置賜郡高畠町二井宿字宮下 |
| 種別 | 古民家 |
| 地目 | 宅地、宅地 |
| 地勢 | 平坦地 |
| 土地面積 | 1235.48㎡ (373.73坪) |
| 建物面積 | 279.15㎡ (84.43坪) |
| 建物構造 | 木造草葺2階建 |
| 築年 | 不詳 |
| 床面積1階 | 221.96㎡ (67.14坪) |
| 床面積2階 | 57.19㎡ (17.29坪) |
| 接道状況 | 南側が幅約3mの舗装公道に接する |
| 都市計画 | 区域外 |
| 法令 | 山形県景観条例、文化財保護法(宮下遺跡) |
| 標高 | 303m |
| 設備 | 電気、公営水道、単独浄化槽、PG |
| 交通 | 奥羽本線(山形線)・山形新幹線高畠駅より約10.2km、赤湯駅より約12.9km、東北中央道南陽高畠ICより約9.5km、東北道白石ICより約52.5km |
| 生活 | スーパーヤマザワへ約9.6km、ローソンへ約9.5km、公立病院へ約9.6km、道の駅へ約6.3km、コメリへ約9.7km、町役場へ約9.8km |
| 備考 | 附属建物①:倉庫、土蔵造草葺2階建、1階26.44㎡、2階26.44㎡ 附属建物②:倉庫、土蔵造草葺平家建、1階26.44㎡ |
| 備考2 | 近隣農地の売買については別途相談。河川浸水想定区域(0.5-3.0m未満) |
情報更新日:2026/02/18
この物件について問い合わせる
しつこい営業は一切致しませんので、安心してお問い合わせください。
現地へのご案内手配や、ネットでは公開していない詳細情報・ご質問事項をお答えいたします。
(※ご見学前に特別にお送りする資料等はご用意しておりませんのでご了承ください)
現地へのご案内手配や、ネットでは公開していない詳細情報・ご質問事項をお答えいたします。
(※ご見学前に特別にお送りする資料等はご用意しておりませんのでご了承ください)
※掲載されている図面・データが現況と異なる場合は、現況を優先します。

























































